Подъемник строительный ПС-500 "Умелец"
Кран в окно Умелец ПС-500 является переставным грузоподъемным механизмом, перемещаемым с одного участка работы на другой вручную. Для удобства перемещения и установки в рабочем положении подъемник Умелец оснащен: на стойках задних - опорными колесами с фиксаторами; на стойках передних - регулировочными винтовыми опорами (домкратами).
После подъема груз затягивается по пролетной балке. Затягивание груза осуществляется вручную за ручку-фиксатор 12. После затягивания груз опускается на основание (пол, перекрытие), на котором стоит Умелец - между контейнером с противовесами и передней стойкой.
Допускается эксплуатация строительного подъемника Умелец при температуре окружающей среды не выше +40С и не ниже -40С и влажности 75%. В части воздействия климатических факторов подъемник соответствует У2 по ГОСТ 15150.
Кран Умелец ПС-500 имеет оригинальную конструкцию с вылетом стрелы 1,82м и колесами позволяющими легко передвигать кран, уникальным тросоукладчиком, обеспечивающим длительный срок службы каната, а также высокопрочным покрытием, позволяющим обеспечить защиту от коррозии в течение всего срока службы.
Кран в окно Умелец поставляется в разобранном виде. Комплект поставки также включает в себя документацию: паспорт на электродвигатель, паспорт и руководство по эксплуатации на подъемник Умелец ПС-500. Порядок сборки указан в руководстве по эксплуатации. Руководство по эксплуатации крана Умелец ПС-500 совмещено с паспортом.
Подъемник Умелец не допускается эксплуатировать во взрывоопасных и пожароопасных средах, в помещениях, насыщенных парами кислот, щелочей и других веществ в концентрациях, приводящих к коррозии металла и разрушающих изоляцию электропроводки, а также для подъема и перемещения людей, ядовитых веществ, жидкого и раскаленного металла.
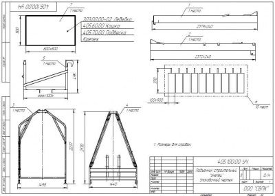
Подъемник Умелец ПС-500 состоит из следующих основных узлов и деталей: кошки 10 с подвеской 11, балок 3 и 4, стойки передней 5, стойки задней 6, стяжек 7, 8 и 13, лебедки электрической 1. Металлоконструкции подъемника крепятся между собой стандартными крепежными изделиями, сборочными единицами и деталями, входящими в комплектацию подъемника. Устойчивость подъемника во время эксплуатации обеспечивается противовесами в количестве 10 штук.
Балки 3 и 4 изготовлены из двутавра №16 с приварными фланцами для крепления между собой в единую пролетную балку болтовым соединением М16 и к стойкам болтовым соединением М12. Стойки и стяжки выполнены из труб круглого сечения. Стяжки крепятся к стойкам и пролетной балке болтовым соединением М10.
Лебедка крепится на задней стойке болтовым соединением М12. Лебедка состоит из корпуса, образованного двумя щеками (соединенными между собой стяжками), электродвигателя, барабана и зубчатых колес. Под барабаном расположен прижимнй ролик для обеспечения более качественной навивки каната. Вращающийся барабан огражден защитным кожухом. На щеке закреплен электрический пульт управления. От пульта отходит кабель с кнопочным тельферным постом и микровыключателем, который в процессе эксплуатации крепится к передвижной кошке 10.
Рабочим органом подъемника является подвеска 11 с кошкой 10. Подъем/опускание подвески осуществляется лебедкой, а перемещение кошки по пролетной балке осуществляется вручную. Кошка имеет специальный фиксатор, который зацепляется за крюк, расположенный на конце балки, и не позволяет кошке перемещаться во время подъема/опускания подвески.
Также на схеме отмечены: 2 - струна; 9 - контейнер; 12 - рычаг тяговый; 13 - стяжка контейнера. Прочие позиции - крепежные изделия.
В состав электрооборудования крана Умелец входят: электродвигатель со встроенным электромагнитным тормозом, пост тельферный, микровыключатель, пускатели, выключатель автоматический. Микровыключатель расположен на кошке и отключает электродвигатель при подъеме подвески до крайнего верхнего рабочего положения.
Включение лебедки осуществляется автоматическим выключателем на пульте лебедки, а управление - постом кнопочным тельферным.
Кран Умелец ПС-500 имеет срок гарантии 12 месяцев со дня ввода подъемника в эксплуатацию, но не более 18 месяцев со дня отгрузки с предприятия-изготовителя. Указанный срок гарантии не распространяется на грузовой канат. Средний срок службы подъемника строительного Умелец не менее 36 месяцев при условии надлежащей эксплуатации в соответствии с требованиями паспорта/ руководства по эксплуатации.
Кран в окно Умелец ПС-500 является переставным грузоподъемным механизмом, перемещаемым с одного участка работы на другой вручную. Для удобства перемещения и установки в рабочем положении подъемник Умелец оснащен: на стойках задних - опорными колесами с фиксаторами; на стойках передних - регулировочными винтовыми опорами (домкратами).
После подъема груз затягивается по пролетной балке. Затягивание груза осуществляется вручную за ручку-фиксатор 12. После затягивания груз опускается на основание (пол, перекрытие), на котором стоит Умелец - между контейнером с противовесами и передней стойкой.
Допускается эксплуатация строительного подъемника Умелец при температуре окружающей среды не выше +40С и не ниже -40С и влажности 75%. В части воздействия климатических факторов подъемник соответствует У2 по ГОСТ 15150.
Кран Умелец ПС-500 имеет оригинальную конструкцию с вылетом стрелы 1,82м и колесами позволяющими легко передвигать кран, уникальным тросоукладчиком, обеспечивающим длительный срок службы каната, а также высокопрочным покрытием, позволяющим обеспечить защиту от коррозии в течение всего срока службы.
Кран в окно Умелец поставляется в разобранном виде. Комплект поставки также включает в себя документацию: паспорт на электродвигатель, паспорт и руководство по эксплуатации на подъемник Умелец ПС-500. Порядок сборки указан в руководстве по эксплуатации. Руководство по эксплуатации крана Умелец ПС-500 совмещено с паспортом.
Подъемник Умелец не допускается эксплуатировать во взрывоопасных и пожароопасных средах, в помещениях, насыщенных парами кислот, щелочей и других веществ в концентрациях, приводящих к коррозии металла и разрушающих изоляцию электропроводки, а также для подъема и перемещения людей, ядовитых веществ, жидкого и раскаленного металла.
Подъемник Умелец ПС-500 состоит из следующих основных узлов и деталей: кошки 10 с подвеской 11, балок 3 и 4, стойки передней 5, стойки задней 6, стяжек 7, 8 и 13, лебедки электрической 1. Металлоконструкции подъемника крепятся между собой стандартными крепежными изделиями, сборочными единицами и деталями, входящими в комплектацию подъемника. Устойчивость подъемника во время эксплуатации обеспечивается противовесами в количестве 10 штук.
Балки 3 и 4 изготовлены из двутавра №16 с приварными фланцами для крепления между собой в единую пролетную балку болтовым соединением М16 и к стойкам болтовым соединением М12. Стойки и стяжки выполнены из труб круглого сечения. Стяжки крепятся к стойкам и пролетной балке болтовым соединением М10.
Лебедка крепится на задней стойке болтовым соединением М12. Лебедка состоит из корпуса, образованного двумя щеками (соединенными между собой стяжками), электродвигателя, барабана и зубчатых колес. Под барабаном расположен прижимнй ролик для обеспечения более качественной навивки каната. Вращающийся барабан огражден защитным кожухом. На щеке закреплен электрический пульт управления. От пульта отходит кабель с кнопочным тельферным постом и микровыключателем, который в процессе эксплуатации крепится к передвижной кошке 10.
Рабочим органом подъемника является подвеска 11 с кошкой 10. Подъем/опускание подвески осуществляется лебедкой, а перемещение кошки по пролетной балке осуществляется вручную. Кошка имеет специальный фиксатор, который зацепляется за крюк, расположенный на конце балки, и не позволяет кошке перемещаться во время подъема/опускания подвески.
Также на схеме отмечены: 2 - струна; 9 - контейнер; 12 - рычаг тяговый; 13 - стяжка контейнера. Прочие позиции - крепежные изделия.
В состав электрооборудования крана Умелец входят: электродвигатель со встроенным электромагнитным тормозом, пост тельферный, микровыключатель, пускатели, выключатель автоматический. Микровыключатель расположен на кошке и отключает электродвигатель при подъеме подвески до крайнего верхнего рабочего положения.
Включение лебедки осуществляется автоматическим выключателем на пульте лебедки, а управление - постом кнопочным тельферным.
Кран Умелец ПС-500 имеет срок гарантии 12 месяцев со дня ввода подъемника в эксплуатацию, но не более 18 месяцев со дня отгрузки с предприятия-изготовителя. Указанный срок гарантии не распространяется на грузовой канат. Средний срок службы подъемника строительного Умелец не менее 36 месяцев при условии надлежащей эксплуатации в соответствии с требованиями паспорта/ руководства по эксплуатации.
|
Грузоподъемность, тн
|
0.5 |
|
Высота подъема, м
|
50 |
|
Напряжение питания, В
|
3x380 |
|
Вылет стрелы, м
|
1.82 |
|
Макс. скорость подъема (опускания) груза, м/мин
|
17.0 |
|
Диаметр каната, мм
|
5.5 |
|
Режим работы по ГОСТ 25835
|
3М/В3 |
|
Масса противовеса, кг
|
700 |
|
Мощность двигателя, кВт
|
1.7 |
|
Вес, кг
|
424 |
|
Габаритные размеры, мм
|
см. схему |
Оформить заказ на нашем сайте легко. Просто добавьте выбранные товары в корзину, а затем перейдите на страницу Корзина, проверьте правильность заказанных позиций и нажмите кнопку «Оформить заказ» или «Быстрый заказ».
Функция «Быстрый заказ» позволяет покупателю не проходить всю процедуру оформления заказа самостоятельно. Вы заполняете форму, и через короткое время вам перезвонит менеджер магазина. Он уточнит все условия заказа, ответит на вопросы, касающиеся качества товара, его особенностей. А также подскажет о вариантах оплаты и доставки.
По результатам звонка, пользователь либо, получив уточнения, самостоятельно оформляет заказ, укомплектовав его необходимыми позициями, либо соглашается на оформление в том виде, в котором есть сейчас. Получает подтверждение на почту или на мобильный телефон и ждёт доставки.
Выберите из списка название вашего региона и населённого пункта. Если вы не нашли свой населённый пункт в списке, выберите значение «Другое местоположение» и впишите название своего населённого пункта в графу «Город». Введите правильный индекс.
В зависимости от места жительства вам предложат варианты доставки. Выберите любой удобный способ.
Оплата
Выберите оптимальный способ оплаты.
Введите данные о себе: ФИО, адрес доставки, номер телефона. В поле «Комментарии к заказу» введите сведения, которые могут пригодиться курьеру, например: подъезды в доме считаются справа налево.
Проверьте правильность ввода информации: позиции заказа, выбор местоположения, данные о покупателе. Нажмите кнопку «Оформить заказ».
Наш сервис запоминает данные о пользователе, информацию о заказе и в следующий раз предложит вам повторить к вводу данные предыдущего заказа. Если условия вам не подходят, выбирайте другие варианты.
Вы можете выбрать один из трёх вариантов оплаты:
При выборе варианта оплаты наличными, вы дожидаетесь приезда курьера и передаёте ему сумму за товар в рублях. Курьер предоставляет товар, который можно осмотреть на предмет повреждений, соответствие указанным условиям. Покупатель подписывает товаросопроводительные документы, вносит денежные средства и получает чек.
Также оплата наличными доступна при самовывозе из магазина, оплаты по почте или использовании постамата.
При оформлении заказа в корзине вы можете выбрать вариант безналичной оплаты. Мы принимаем карты Visa и Master Card. Чтобы оплатить покупку, вас перенаправит на сервер системы ASSIST, где вы должны ввести номер карты, срок действия, имя держателя.
Вам могут отказать от авторизации в случае:
- если ваш банк не поддерживает технологию 3D-Secure;
- на карте недостаточно средств для покупки;
- банк не поддерживает услугу платежей в интернете;
- истекло время ожидания ввода данных;
- в данных была допущена ошибка.
В этом случае вы можете повторить авторизацию через 20 минут, воспользоваться другой картой или обратиться в свой банк для решения вопроса.
Безналичным расчётом можно воспользоваться при курьерской доставке, использовании постамата или самовывоза из магазина.
Для оплаты вы можете воспользоваться одной из электронных платёжных систем:
- PayPal;
- WebMoney;
- Яндекс.Деньги.
Вас перенаправит на страницу платежного сервиса, следуя инструкциям, заполните правильную форму.
Наш интернет-магазин предлагает несколько вариантов доставки:
- курьерская;
- самовывоз из магазина;
- постаматы;
- почта России.
Вы можете заказать доставку товара с помощью курьера, который прибудет по указанному адресу в будние дни и субботу с 9.00 до 19.00. Курьерская служба, после поступления товара на склад, свяжется с вами и предложит выбрать удобное время доставки. Уточнит адрес.
Вы вскрываете упаковку при курьере, осматриваете на целостность и соответствие указанной комплектации. Если речь идёт об одежде, допустима примерка. Время осмотра и примерки ограничено 15 минутами. После вы можете отказаться частично или полностью от покупки.
Доставка бесплатна при заказе от 3000 рублей.
*Действует ли в вашем городе курьерская служба, уточняйте у менеджера магазина.
Вы можете забрать товар в одном из магазинов, сотрудничающих с нами. Список торговых точек, которые принимают заказы от нашей компании появится у вас в корзине. Когда заказ поступит в ваш город, вам придёт уведомление. Вы просто идёте в этот магазин, обращаетесь к сотруднику в кассовой зоне и называете номер заказа. Забрать покупку может ваш друг или родственник, который знает номер и имя, на кого он оформлен.
Постамат – это терминал с автоматизированной системой для хранения заказанных товаров. Удобство в том, что человек может забрать заказ в любое удобное время.
- в момент оформления заказа на сайте, вы выбираете удобный для себя постамат, если такая система работает в вашем городе;
- на ваш телефон или e-mail придет уникальный код, это значит, что товар доставлен в постамат;
- вы приходите к постамату, вводите полученный код и следует инструкциям автомата;
- оплачиваете заказ в терминале постамата;
- забираете товар.
Срок хранения в постамате 3 дня, но можно продлить ещё на аналогичный срок. Чтобы уточнить информацию и продлить время хранения зайдите на сайт нашего партнера, введите номер заказа и телефон и следуйте подсказкам на сайте.
Если в вашем городе не действует курьерская служба и постаматы, то вы можете заказать доставку через почту России. Сразу по прибытии товара, на ваш адрес придет извещение о посылке.
Перед оплатой вы можете оценить состояние коробки (не вскрывая): вес, целостность. Если вам кажется, что заказ не соответствует параметрам или коробка повреждена, попросите сотрудника почты составить акт о вскрытии. Вскрывать коробку самостоятельно вы можете только после того, как оплатили заказ.
Один заказ может содержать не больше 10 позиций и его стоимость не должна превышать 100 тысяч рублей.







