Кран стреловой поворотный КСП-320 "МАСТЕР"
Кран полностью разборный, собственный вес отдельных элементов не превышает 50кг, что позволяет легко устанавливать его на кровлю силой двух человек без дополнительного использования грузоподъемной техники. Кран поставляется в разобраном виде.
Кран Мастер имеет надежный тормоз - электромагнитный нормальнозамкнутый, входит в состав электродвигателя. Приборы и устройства безопасности - конечный выключатель ограничения высоты подъема груза, отключение от электросети при перегрузке механизма подъема груза.
Допускается эксплуатация крана при температуре окружающей среды не выше +40С и не ниже -40С. В части климатических факторов кран соответствует исполнению У2 по ГОСТ 15150 (кран должен быть защищен от воздействия атмосферных осадков).
Кран стреловой поворотный КСП-320 Мастер является грузоподъемным механизмом, который монтируется непосредственно на месте эксплуатации. Площадка, на которой установлен кран, должна иметь уклон не более 3°. Если уклон больше, то кран необходимо выставить при помощи опорных домкратов крана.
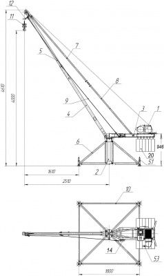
Кран состоит из следующих основных узлов и деталей: рамы 3, лебедки 1, ног 6, верхней стрелы 5 и нижней стрелы 4, колонны 2, стяжки 7 и укосины 8, крюковой подвески 11. Сборочные единицы крана крепятся между собой стандартными крепежными изделиями и деталями, входящими в комплектацию крана. Устойчивость крана во время эксплуатации обеспечивается контргрузами 20 в количестве 6 шт. Колонна 2, ноги 6 и стяжки 10 образуют единую платформу. К колонне 2 при помощи болтового соединения М16 крепится рама 3. Рама изготовлена из швеллера и квадратной трубы, соединенных между собой приварными косынками.
К раме крепится лебедка 1. В корпусе лебедки закреплены электродвигатель и барабан. Электродвигатель передает вращающий момент на барабан через двухступенчатый редуктор, закрытый защитным кожухом. На щеке лебедки закреплен электрический пульт. От электропульта отходит один кабель с кнопочным тельферным постом 53 и микровыключателем 14, закрепленным на раме.
В состав электрооборудования входят: электродвигатель со встроенным электромагнитным тормозом, пост тельферный, микровыключатель, пускатели, выключатель автоматический.
Кран поставляется в разобраном виде. На фото показаны отгрузочные места: 1 - Электрическая лебедка для подъема опускания груза (в ящике); 2 - Колонна; 3 - Поворотная рама; 4 - Ноги (детали опорной платформы); 5 - стрела; 6 - стяжки. В комплекте поставки также имеются железобетонные контргрузы в количестве 6 штук.
Кран стреловой Мастер КСП-320 удобен в работе и прост в техническом обслуживании. Срок гарантии - 12 месяцев со дня ввода крана в эксплуатацию, но не более 18 месяцев со дня отгрузки с предприятия-изготовителя. Срок гарантии не распространяется на грузовой канат. Срок службы крана 3 года. За этот период кран должен пройти 3 текущих ремонта.
Кран полностью разборный, собственный вес отдельных элементов не превышает 50кг, что позволяет легко устанавливать его на кровлю силой двух человек без дополнительного использования грузоподъемной техники. Кран поставляется в разобраном виде.
Кран Мастер имеет надежный тормоз - электромагнитный нормальнозамкнутый, входит в состав электродвигателя. Приборы и устройства безопасности - конечный выключатель ограничения высоты подъема груза, отключение от электросети при перегрузке механизма подъема груза.
Допускается эксплуатация крана при температуре окружающей среды не выше +40С и не ниже -40С. В части климатических факторов кран соответствует исполнению У2 по ГОСТ 15150 (кран должен быть защищен от воздействия атмосферных осадков).
Кран стреловой поворотный КСП-320 Мастер является грузоподъемным механизмом, который монтируется непосредственно на месте эксплуатации. Площадка, на которой установлен кран, должна иметь уклон не более 3°. Если уклон больше, то кран необходимо выставить при помощи опорных домкратов крана.
Кран состоит из следующих основных узлов и деталей: рамы 3, лебедки 1, ног 6, верхней стрелы 5 и нижней стрелы 4, колонны 2, стяжки 7 и укосины 8, крюковой подвески 11. Сборочные единицы крана крепятся между собой стандартными крепежными изделиями и деталями, входящими в комплектацию крана. Устойчивость крана во время эксплуатации обеспечивается контргрузами 20 в количестве 6 шт. Колонна 2, ноги 6 и стяжки 10 образуют единую платформу. К колонне 2 при помощи болтового соединения М16 крепится рама 3. Рама изготовлена из швеллера и квадратной трубы, соединенных между собой приварными косынками.
К раме крепится лебедка 1. В корпусе лебедки закреплены электродвигатель и барабан. Электродвигатель передает вращающий момент на барабан через двухступенчатый редуктор, закрытый защитным кожухом. На щеке лебедки закреплен электрический пульт. От электропульта отходит один кабель с кнопочным тельферным постом 53 и микровыключателем 14, закрепленным на раме.
В состав электрооборудования входят: электродвигатель со встроенным электромагнитным тормозом, пост тельферный, микровыключатель, пускатели, выключатель автоматический.
Кран поставляется в разобраном виде. На фото показаны отгрузочные места: 1 - Электрическая лебедка для подъема опускания груза (в ящике); 2 - Колонна; 3 - Поворотная рама; 4 - Ноги (детали опорной платформы); 5 - стрела; 6 - стяжки. В комплекте поставки также имеются железобетонные контргрузы в количестве 6 штук.
Кран стреловой Мастер КСП-320 удобен в работе и прост в техническом обслуживании. Срок гарантии - 12 месяцев со дня ввода крана в эксплуатацию, но не более 18 месяцев со дня отгрузки с предприятия-изготовителя. Срок гарантии не распространяется на грузовой канат. Срок службы крана 3 года. За этот период кран должен пройти 3 текущих ремонта.
|
Грузоподъемность, тн
|
0.32 |
|
Высота подъема, м
|
60/80 |
|
Напряжение питания, В
|
3x380 |
|
Вылет стрелы, м
|
2.65 |
|
Угол поворота стрелы, °
|
360 |
|
Высота подъема при уст. на земле, м
|
4.0 |
|
Макс. скорость подъема (опускания) груза, м/мин
|
22.0 |
|
Опорная площадь, м
|
1.8 x 1.8 |
|
Макс. уклон опорной поверхности, °
|
3 |
|
Диаметр каната, мм
|
5.5 |
|
Режим работы по ГОСТ 25835
|
3М/В3 |
|
Масса противовеса, кг
|
390 |
|
Мощность двигателя, кВт
|
1.7 |
|
Вес, кг
|
260 |
|
Габаритные размеры, мм
|
см. схему |
Оформить заказ на нашем сайте легко. Просто добавьте выбранные товары в корзину, а затем перейдите на страницу Корзина, проверьте правильность заказанных позиций и нажмите кнопку «Оформить заказ» или «Быстрый заказ».
Функция «Быстрый заказ» позволяет покупателю не проходить всю процедуру оформления заказа самостоятельно. Вы заполняете форму, и через короткое время вам перезвонит менеджер магазина. Он уточнит все условия заказа, ответит на вопросы, касающиеся качества товара, его особенностей. А также подскажет о вариантах оплаты и доставки.
По результатам звонка, пользователь либо, получив уточнения, самостоятельно оформляет заказ, укомплектовав его необходимыми позициями, либо соглашается на оформление в том виде, в котором есть сейчас. Получает подтверждение на почту или на мобильный телефон и ждёт доставки.
Выберите из списка название вашего региона и населённого пункта. Если вы не нашли свой населённый пункт в списке, выберите значение «Другое местоположение» и впишите название своего населённого пункта в графу «Город». Введите правильный индекс.
В зависимости от места жительства вам предложат варианты доставки. Выберите любой удобный способ.
Оплата
Выберите оптимальный способ оплаты.
Введите данные о себе: ФИО, адрес доставки, номер телефона. В поле «Комментарии к заказу» введите сведения, которые могут пригодиться курьеру, например: подъезды в доме считаются справа налево.
Проверьте правильность ввода информации: позиции заказа, выбор местоположения, данные о покупателе. Нажмите кнопку «Оформить заказ».
Наш сервис запоминает данные о пользователе, информацию о заказе и в следующий раз предложит вам повторить к вводу данные предыдущего заказа. Если условия вам не подходят, выбирайте другие варианты.
Вы можете выбрать один из трёх вариантов оплаты:
При выборе варианта оплаты наличными, вы дожидаетесь приезда курьера и передаёте ему сумму за товар в рублях. Курьер предоставляет товар, который можно осмотреть на предмет повреждений, соответствие указанным условиям. Покупатель подписывает товаросопроводительные документы, вносит денежные средства и получает чек.
Также оплата наличными доступна при самовывозе из магазина, оплаты по почте или использовании постамата.
При оформлении заказа в корзине вы можете выбрать вариант безналичной оплаты. Мы принимаем карты Visa и Master Card. Чтобы оплатить покупку, вас перенаправит на сервер системы ASSIST, где вы должны ввести номер карты, срок действия, имя держателя.
Вам могут отказать от авторизации в случае:
- если ваш банк не поддерживает технологию 3D-Secure;
- на карте недостаточно средств для покупки;
- банк не поддерживает услугу платежей в интернете;
- истекло время ожидания ввода данных;
- в данных была допущена ошибка.
В этом случае вы можете повторить авторизацию через 20 минут, воспользоваться другой картой или обратиться в свой банк для решения вопроса.
Безналичным расчётом можно воспользоваться при курьерской доставке, использовании постамата или самовывоза из магазина.
Для оплаты вы можете воспользоваться одной из электронных платёжных систем:
- PayPal;
- WebMoney;
- Яндекс.Деньги.
Вас перенаправит на страницу платежного сервиса, следуя инструкциям, заполните правильную форму.
Наш интернет-магазин предлагает несколько вариантов доставки:
- курьерская;
- самовывоз из магазина;
- постаматы;
- почта России.
Вы можете заказать доставку товара с помощью курьера, который прибудет по указанному адресу в будние дни и субботу с 9.00 до 19.00. Курьерская служба, после поступления товара на склад, свяжется с вами и предложит выбрать удобное время доставки. Уточнит адрес.
Вы вскрываете упаковку при курьере, осматриваете на целостность и соответствие указанной комплектации. Если речь идёт об одежде, допустима примерка. Время осмотра и примерки ограничено 15 минутами. После вы можете отказаться частично или полностью от покупки.
Доставка бесплатна при заказе от 3000 рублей.
*Действует ли в вашем городе курьерская служба, уточняйте у менеджера магазина.
Вы можете забрать товар в одном из магазинов, сотрудничающих с нами. Список торговых точек, которые принимают заказы от нашей компании появится у вас в корзине. Когда заказ поступит в ваш город, вам придёт уведомление. Вы просто идёте в этот магазин, обращаетесь к сотруднику в кассовой зоне и называете номер заказа. Забрать покупку может ваш друг или родственник, который знает номер и имя, на кого он оформлен.
Постамат – это терминал с автоматизированной системой для хранения заказанных товаров. Удобство в том, что человек может забрать заказ в любое удобное время.
- в момент оформления заказа на сайте, вы выбираете удобный для себя постамат, если такая система работает в вашем городе;
- на ваш телефон или e-mail придет уникальный код, это значит, что товар доставлен в постамат;
- вы приходите к постамату, вводите полученный код и следует инструкциям автомата;
- оплачиваете заказ в терминале постамата;
- забираете товар.
Срок хранения в постамате 3 дня, но можно продлить ещё на аналогичный срок. Чтобы уточнить информацию и продлить время хранения зайдите на сайт нашего партнера, введите номер заказа и телефон и следуйте подсказкам на сайте.
Если в вашем городе не действует курьерская служба и постаматы, то вы можете заказать доставку через почту России. Сразу по прибытии товара, на ваш адрес придет извещение о посылке.
Перед оплатой вы можете оценить состояние коробки (не вскрывая): вес, целостность. Если вам кажется, что заказ не соответствует параметрам или коробка повреждена, попросите сотрудника почты составить акт о вскрытии. Вскрывать коробку самостоятельно вы можете только после того, как оплатили заказ.
Один заказ может содержать не больше 10 позиций и его стоимость не должна превышать 100 тысяч рублей.











